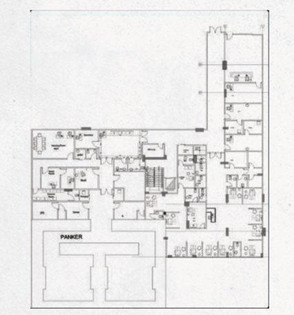
SCOOP: Architecture Modification & Interior design and Designs tracking.
LOCATION: Shifa Hospital New Cairo. YEAR: 2023
DESCRIPTION:
The scope of work for the Radiation & Chanotherapy Department involved 1,100 m² of architectural modifications and interior design. This included comprehensive design development and on-site supervision to ensure the proper execution of the planned changes.